
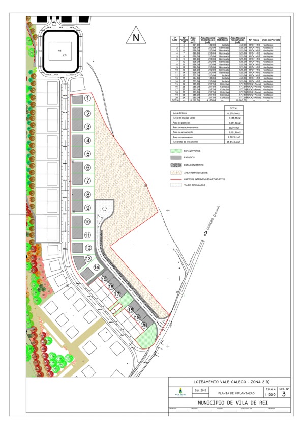
O Executivo Municipal de Vila de Rei aprovou, em reunião ordinária realizada a 5 de janeiro, a abertura de Hasta Pública para a venda de lotes no Loteamento Vale Galego – Fase 2B.
Encontram-se assim disponíveis para aquisição 20 lotes, com um valor base de 22,5€ por metro quadrado, num espaço privilegiado na sede do Concelho.
Todos os interessados deverão entregar as suas propostas, contra recibo ou por via postal sob registo e com aviso de receção, na Divisão Financeira de Património e Ambiente da Câmara Municipal de Vila de Rei até às 16:00 horas do dia 30 de março.
A abertura das propostas será realizada em sessão pública, na Sala das Sessões do edifício dos Paços do Concelho, pelas 15:00 horas do dia 31 de março, nela podendo participar os concorrentes ou os seus representantes devidamente credenciados.
O Programa de Procedimento e o respetivo Caderno de Encargos podem ser consultados em www.cm-viladerei.pt.

